LA MAISON BERGAMO PROPONE IN ESCLUSIVA.
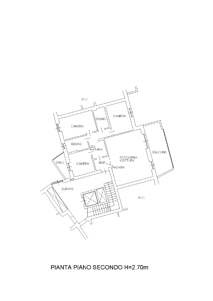
Nel complesso “LE TERRAZZE SU CITTA’ ALTA”, nel cuore del tranquillo e ben servito quartiere Villaggio degli Sposi a Bergamo, proponiamo in vendita uno splendido quadrilocale di 120 mq, costruito nel 2018 con un’attenzione meticolosa all’efficienza energetica e alla sostenibilità ambientale.
Questo appartamento, rifinito con materiali extra-capitolato di pregio, offre spazi luminosi e funzionali, pensati per il massimo comfort abitativo.
La zona giorno si compone di una grande cucina a vista, ideale per chi ama convivialità e design, e si affaccia su un ampio terrazzo, perfetto per godersi momenti di relax all’aperto. Un ulteriore balcone completa gli spazi esterni.
La zona notte dispone di tre camere da letto spaziose e ben illuminate, e due bagni moderni e funzionali.
L’immobile vanta soluzioni all’avanguardia per il comfort e l’efficienza energetica, tra cui un sistema di riscaldamento e raffreddamento a pavimento e un sistema di ricircolo dell’aria meccanizzato.
La proprietà viene venduta completamente arredata con gusto e attenzione ai dettagli, pronta per essere abitata. Sono inoltre già presenti le predisposizioni per l’impianto d’allarme e la domotica, offrendo ulteriori possibilità di personalizzazione e sicurezza.
A completare questa esclusiva offerta, è incluso nel prezzo un box doppio in larghezza di ben 39 mq, garantendo spazio e comodità per i vostri veicoli e non solo.
Punti di forza:
– quadrilocale di 120 mq
– costruzione del 2018
– elevata efficienza energetica e sostenibilità
– 3 camere da letto, 2 bagni
– grande cucina a vista
– ampio terrazzo e balcone
– riscaldamento/raffreddamento a pavimento
– ricircolo aria meccanizzato
– materiali extra-capitolato di pregio
– venduto arredato
– predisposizione impianto d’allarme e domotica
– box doppio in larghezza (39 mq)
– quartiere tranquillo e ben servito (fermata dell’autobus sotto casa)
– scuole dell’infanzia, primaria e secondaria nelle vicinanze.
Contattaci per maggiori informazioni.
